Centrium Square|实龙岗中心位置,全新混合功能综合商业开发项目(商铺,写字楼)永久地契

简介:

Centrium Square位于D08邮区的320 Serangoon Road, Singapore 218108,由知名开发商Feature Development Pte Ltd开发。Centrium Square拥有永久产权,共231个单位。

新加坡邮区分布图:

7811acd6860fb49145cd41778cb70b2b5a12e6bb.jpeg03149ecad28c843047c8b28ec301a810359c7860.jpeg

概况:

楼盘名称:

Centrium Square

开发商:

Feature Development Pte Ltd

产权:

永久产权

预计交钥匙时间:

2023年

单位数量:

231

楼层数量:

起始总价:

新币 S$1,768,000

每平方英尺起始:

新币 S$

2bec0580222297d64bc14a4ea34209e1698da90d.jpeg

Centrium Square永久产权

ba61b161b582aa7fe5e0ee08c8d057d4ec90021f.jpeg

Centrium Square简介

一个位于实龙岗路(Serangoon Road)黄金地段的、令人激动不已的全新混合功能综合商业开发项目。

采用大胆、活力、现代的设计,提供了高规格的办公空间,并辅以诱人的商铺和餐厅。

Centrium Square为您的企业提供了理想办公环境,使其在绝佳的环境中脱颖而出。

事实&数据

永久地契

68500平方英尺土地面积

19层,109米高

2层商铺和餐厅

沿实龙岗路(Serangoon Road)长达115米的临街面

12米高的有顶天台

办公楼层高4.9米

无柱、高效的办公室地板

124个停车场、3个无障碍停车场、1个家庭停车场

第三层的自行车停放区

新加坡建设局绿色建筑标志金评级

c280c719881b2afd034d3487e090c244017c8502.jpeg

建筑理念

115米长的零售垫楼外立面采用了平面二维几何镶嵌图案的屏幕,营造出多重三维立体的视觉效果。

装饰性风格的外立面是对老店街景的现代诠释,由不同的高度,精美的纹理以及错综复杂的细节装饰而组成。垂直凹槽凸显了立面屏幕,这是商铺聚会墙节奏基准的一种表达形式。

Centrium Square位于小印度(Little India)保护区的边缘,由现代立面创造出的规模和纹理不仅与周围住宅区息息相关,还为开发项目打造了独特的个性。充满活力且色彩斑斓的外立面反映了小印度(Little India)的多感官特征,并通过采用现代手法延续主题的方式,向这里历史悠久的商铺致敬。

1cdb06d8c679a18ba45e5caec610feb5ed441756.jpeg

身处核心位置

Centrium Square地理位置优越,位于城市边缘——实龙岗路(Serangoon Road)的中心位置,为您提供了通往中央商务区(Central Business District),滨海湾(Marina Bay)和乌节路(Orchard Road)的无与伦比的便利。

步行即可到达花拉公园地铁站(Farrer Park MRT),可轻松驶入/驶出中央高速公路(CTE)和泛岛高速公路(PIE)等主要高速公路干线,这让通勤变得从未如此便捷。

Centrium Square被丰富多样的设施和魅力四射的小印度(Little India)所环绕,真正的为您提供了两全其美的体验。

花费时长

2分钟 花拉公园地铁站

3分钟 城市广场购物中心

5分钟 白浮沙广场

3分钟 诺维娜广场

8分钟 中央商务区

8分钟 乌节路

10分钟 体育城

ebf2e71b8811833d8a0f0206809d20a6fa679f78.jpeg

办公大楼

办公大楼拥有一个私人落客区,静谧的隐藏在繁华的购物中心后方,通向优雅的大堂。从办公楼大堂可以进入零售区,这里为办公室用户提供了轻松进入商铺和享用美食的无限便利。

办公楼单元拥有4.9米的楼层高度,为您提供高效的楼层平面图和灵活的布局,方便您调整外观以适应公司个性,并为您提供随业务发展而灵活变化的工作空间。

高大的双层玻璃窗将自然采光和有效通风带入工作区域,同时最大程度地减少了太阳能辐射和噪音污染。为了提供更多的便利,每个办公单元都配有一个设施齐全的卫生间,包含有淋浴设施和空调壁架,使业主可以选择安装自己的空调以便在非办公时间享受单元服务。

482efc467079fd42a43effcd0d89720b7bb74ab6.jpeg

零售垫楼

零售垫楼拥有115米长的临街面,经过精心布置,提高了购物体验。这里出入便捷——繁华的实龙岗路(Serangoon Road)有两个显眼的入口,方便行人通行。在零售层内部,两层的商铺和餐厅将配备两对自动扶梯和一部客梯。

工作人群可以充分享受位于一层和二层多样化的餐饮选择和令人兴奋的零售店的无限便利。

您可以在超市挑选晚餐食材,也可以在众多美妙的餐厅中挑选一家享用美食,这里非常适合在购物之余吃点便餐或在美食广场享用一顿便捷午餐,同时也是公司聚会或家庭聚餐的理想之选。

56a2c56a07b96806dac909caeff6679e81283f12.jpeg

建造卓越之家

自上世纪50年代成立以来的70年里,Tong Eng Brothers及其公司集团一直以其开发独特的建筑为荣,这些建筑将形式与功能和谐地融为一体。自成立以来,该集团拥有并开发了100多英亩的土地,包括办公、零售、有地住宅和公寓项目。

Tong Eng致力于融合创意规划和简约优雅,同时采用全新的概念和技术来开发具有持久价值的建筑。对于每个项目,从重新定义空间以确保最佳布局到仅提供最无可挑剔的饰面和品质,每一个细节都得以特别关注。

在房地产投资方面,该集团开发了ARC 380,这是一栋位于新加坡中央商务区(Singapore’s Central Business District)边缘的、设计独特的16层办公楼,曾荣获2018年亚洲房地产奖的最佳新加坡办公楼开发奖,Centrium Square是一栋19层的多功能尖端建筑,曾荣获亚洲房地产奖的最佳办公建筑设计奖。

在澳大利亚,该集团拥有墨尔本皇后大道5道(5 Queens Road)和湖畔大道8道(8 Lakeside Drive)的100%股权。此外,通过与乐斯太平洋(Roxy Pacific)的合资企业。该集团在墨尔本圣克尔达路(St Kilda Road, Melbourne)312号和新南威尔士州帕拉马塔(Parramatta, New South Wales)的亚皆老街(Argyle Street)33号拥有永久产权的黄金地段商业建筑。

开发商:Feature Development Pte Ltd.(ROC No. 198101251C)

地理位置:Lot01444M TS17 at Serangoon Road

土地使用权:永久产权

预期空置日期:2023年12月31日

预计完工日期:2026年12月31日

在准备本手册以及构建模型和销售画廊时已采取了一切合理的谨慎措施。开发商和/或其代理商对任何不正确或遗漏情况概不负责。

视觉表现,模型,销售画廊展示和插图,照片以及其他图片表现和参考仅为对开发项目的艺术构想图,且不被视为事实陈述。

所有信息,规格,效果图,视觉表现和平面图在发布时均为准确信息,可能会根据开发商和/或主管当局的要求进行修改,并不得构成任何要约或合同的一部分,亦不得构成发展商的任何保证,亦不应被视为声明或事实陈述。所有资料均需按照建筑当局的指示和/或批准进行修正。所有面积均为近似值,需以最终测量为准。买卖协议应构成开发商和/或营销代理签订的开发商和买方之间的完整协议。(所有图片仅为艺术构想图)

c032dec7ae2e2346d8f70a07d30268e040405acd.gif

随处可达的周边便利设施

交通连通性

Farrer Park MRT Station 步行2分钟

购物/餐饮

City Square Mall 步行3分钟

Bugis Junction 5分钟车程

Novena Square 3分钟车程

CBD 8分钟车程

Orchard Road 8分钟车程

Berseh Food Centre

Tekka Centre/Zhu Jiao Market

大自然/休闲中心

Sports Hub 10分钟车程

医疗中心

T&T Family Health Clinic & Surgery

Q&M Medical & Aesthetic Clinic

公寓提供的部分设施包括:

游泳池

健身角

阳光甲板

健身房

功能房

花园烧烤亭

儿童游乐场

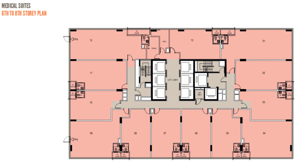
户型分布:

户型

面积(平方英尺)

单位数量

Office

143

Medical Suites

39

Retail Shops

49

主力户型:

edcc566b27fdf9210ca32426a8fbac671b2cb21c.jpeg155d9c171d2a6bd3c95c2de1b2e90a648a4482bb.jpegf857f452d7845cddcdb9cd610633bc49f4df61d1.jpeg85e5fe9f03a787770be5e4f52e339c5ead5d3951.png41841a3b5fa0ac6ed26c7f229b941bae36f8842e.jpeg

Office

新币 S$2,868,000 起

10-01户型 990平方英尺/92平方米

25%首付:S$717,000 / 75%贷款:S$2,151,000

30年贷款,2%利息,月供:S$

7,951

Office

新币 S$2,570,000 起

10-04户型 861平方英尺/80平方米

25%首付:S$642,500 / 75%贷款:S$1,927,500

30年贷款,2%利息,月供:S$

7,128

Office

新币 S$ 2,839,000起

10-12户型 980平方英尺/91平方米

25%首付:S$709,750 / 75%贷款:S$2,129,250

30年贷款,2%利息,月供:S$

7,870

Office

新币 S$ 2,896,000起

11-01户型 990平方英尺/92平方米

25%首付:S$724,000 / 75%贷款:S$2,172,000

30年贷款,2%利息,月供:S$

8,028

Office

新币 S$2,173,000 起

11-02户型 721平方英尺/67平方米

25%首付:S$543,250 / 75%贷款:S$1,629,750

30年贷款,2%利息,月供:S$

6,024

Office

新币 S$ 2,867,000起

11-12户型 980平方英尺/91平方米

25%首付:S$716,750 / 75%贷款:S$2,150,250

30年贷款,2%利息,月供:S$

7,948

Office

新币 S$ 2,194,000起

12-02户型 721平方英尺/67平方米

25%首付:S$548,500 / 75%贷款:S$1,645,500

30年贷款,2%利息,月供:S$

6,082

Office

新币 S$ 2,620,000起

12-04户型 861平方英尺/80平方米

25%首付:S$655,000 / 75%贷款:S$1,965,000

30年贷款,2%利息,月供:S$

7,263

Office

新币 S$ 1,886,000起

12-06户型 614平方英尺/57平方米

25%首付:S$471,500 / 75%贷款:S$1,414,500

30年贷款,2%利息,月供:S$

5,228

Office

新币 S$ 1,751,000起

12-10户型 570平方英尺/53平方米

25%首付:S$437,750 / 75%贷款:S$1,313,250

30年贷款,2%利息,月供:S$

4,854

Office

新币 S$2,160,000 起

12-11户型 710平方英尺/66平方米

25%首付:S$540,000 / 75%贷款:S$1,620,000

30年贷款,2%利息,月供:S$

5,988

Office

新币 S$ 2,894,000起

12-12户型 980平方英尺/91平方米

25%首付:S$723,500 / 75%贷款:S$2,170,500

30年贷款,2%利息,月供:S$

8,023

Office

新币 S$ 1,768,000起

13-03户型 570平方英尺/53平方米

25%首付:S$442,000 / 75%贷款:S$1,326,000

30年贷款,2%利息,月供:S$

4,901

Office

新币 S$ 2,620,000起

13-04户型 861平方英尺/80平方米

25%首付:S$655,000 / 75%贷款:S$1,965,000

30年贷款,2%利息,月供:S$

7,623

Office

新币 S$ 1,904,000起

13-05户型 614平方英尺/57平方米

25%首付:S$476,000 / 75%贷款:S$1,428,000

30年贷款,2%利息,月供:S$

5,278

Office

新币 S$ 1,904,000起

13-06户型 614平方英尺/57平方米

25%首付:S$476,000 / 75%贷款:S$1,428,000

30年贷款,2%利息,月供:S$

5,278

Office

新币 S$ 1,904,000起

13-07户型 614平方英尺/57平方米

25%首付:S$476,000 / 75%贷款:S$1,428,000

30年贷款,2%利息,月供:S$

5,278

Office

新币 S$ 1,904,000起

13-08户型 614平方英尺/57平方米

25%首付:S$476,000 / 75%贷款:S$1,428,000

30年贷款,2%利息,月供:S$

5,278

Office

新币 S$ 2,645,000起

13-09户型 861平方英尺/80平方米

25%首付:S$661,250 / 75%贷款:S$1,983,750

30年贷款,2%利息,月供:S$

7,332

Office

新币 S$1,768,000 起

13-10户型 570平方英尺/53平方米

25%首付:S$442,000 / 75%贷款:S$1,326,000

30年贷款,2%利息,月供:S$

4,901

Office

新币 S$ 2,181,000起

13-11户型 710平方英尺/66平方米

25%首付:S$545,250 / 75%贷款:S$1,635,750

30年贷款,2%利息,月供:S$

6,046

Office

新币 S$ 2,922,000起

13-12户型 980平方英尺/91平方米

25%首付:S$730,500 / 75%贷款:S$2,191,500

30年贷款,2%利息,月供:S$

8,100

Office

新币 S$ 2,979,000起

14-01户型 平方英尺/平方米

25%首付:S$744,750 / 75%贷款:S$2,234,250

30年贷款,2%利息,月供:S$

8,258

Office

新币 S$ 2,236,000起

14-02户型 平方英尺/平方米

25%首付:S$559,000 / 75%贷款:S$1,677,000

30年贷款,2%利息,月供:S$

6,199

Office

新币S$ 1,785,000起

14-03户型 平方英尺/平方米

25%首付:S$446,250 / 75%贷款:S$1,338,750

30年贷款,2%利息,月供:S$

4,948

Office

新币 S$ 1,922,000起

14-06户型 平方英尺/平方米

25%首付:S$480,500 / 75%贷款:S$1,441,500

30年贷款,2%利息,月供:S$

5,328

Office

新币S$ 1,922,000起

14-08户型 平方英尺/平方米

25%首付:S$480,500 / 75%贷款:S$1,441,500

30年贷款,2%利息,月供:S$

5,328

Office

新币 S$ 2,670,000起

14-09户型 平方英尺/平方米

25%首付:S$667,500 / 75%贷款:S$2,002,500

30年贷款,2%利息,月供:S$

7,402

Office

新币S$ 1,785,000起

14-10户型 平方英尺/平方米

25%首付:S$446,250 / 75%贷款:S$1,338,750

30年贷款,2%利息,月供:S$

4,948

Office

新币S$ 2,201,000起

14-11户型 平方英尺/平方米

25%首付:S$550,250 / 75%贷款:S$1,650,750

30年贷款,2%利息,月供:S$

6,101

Office

新币S$ 2,949,000起

14-12户型 平方英尺/平方米

25%首付:S$737,250 / 75%贷款:S$2,211,750

30年贷款,2%利息,月供:S$

8,175

39c3d91216c730561ed121a6edd7aa093d60512c.jpeg

发表回复

您的电子邮箱地址不会被公开。 必填项已用*标注